100
Bexhill Road
£400,000 Offers Over
2
1
1

Property Summary

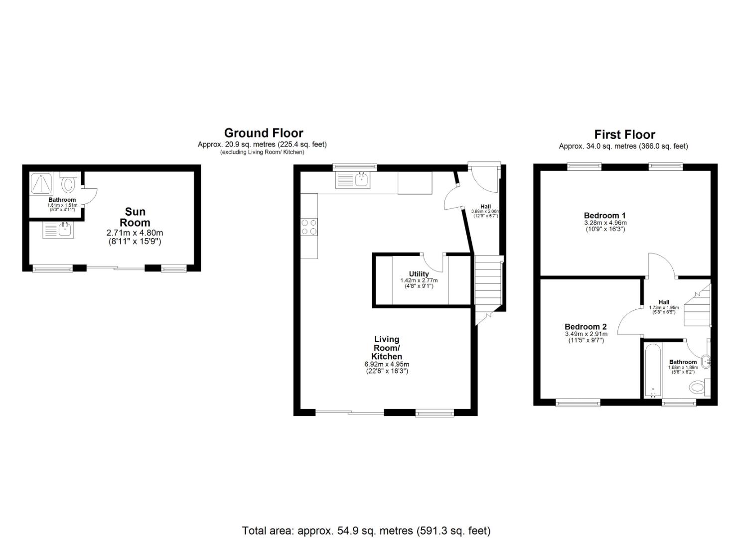
Tucked away on Bexhill Road, this is a home that immediately feels different. From the front, there’s a clean, modern finish that sets the tone for what’s inside and once you step through the door, it delivers.

The ground floor has been thoughtfully opened up to create a bright, sociable living space that just works for everyday life. At the heart of the home is the open-plan kitchen, dining and living area. Sleek, modern and well designed, the kitchen flows effortlessly into the main space, making it as practical as it is stylish.

Large sliding doors draw in natural light and open directly onto the garden, creating that seamless connection between inside and out. The garden itself has been properly considered. A generous decked terrace provides the perfect setting for entertaining, with multiple seating areas and a real sense of privacy. To the rear, a fully insulated garden room adds a whole extra layer to the home, ideal as a home office, guest space, or somewhere to escape and unwind.

Upstairs, the property continues to impress. Two well-proportioned bedrooms are complemented by a stylish family bathroom, while the principal bedroom enjoys far-reaching views across the South Downs a daily reminder of just how well positioned this home is. The finish throughout is clean, modern and considered the kind of home you can move straight into and start enjoying from day one.

Woodingdean is one of those areas people move to for space and stay for lifestyle. Sitting on the edge of the South Downs, you have countryside quite literally on your doorstep, while still being within easy reach of Brighton, the seafront and beyond.

Ready for your FREE guide?

Simply input your details below and it’ll land in your inbox…just like magic!