Grove Mews
Brighton
£750,000 Guide Price

Property Summary

Tucked away in a peaceful, eco-friendly woodland setting, this exclusive collection of architecturally striking homes offers a perfect blend of contemporary design and rustic charm. Thoughtfully designed to complement nature, each home features sustainable elements such as grass roofs, solar panels, smart Nest thermostats, and energy-efficient LED lighting—ensuring stylish yet responsible living.

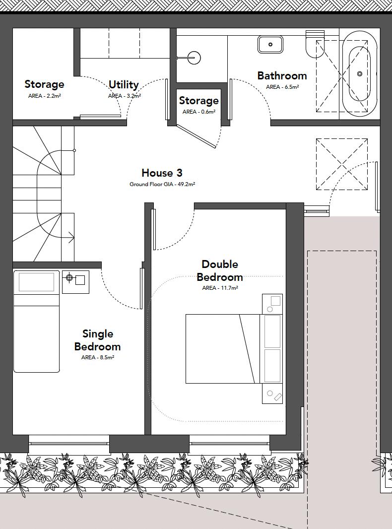
Built with modern lifestyles in mind, these homes offer three spacious bedrooms, including a principal suite with a sleek en-suite shower room and a private front-facing balcony—an ideal spot to unwind. A dedicated ground-floor home office provides the perfect work-from-home setup, balancing productivity with comfort.

Seamlessly connecting indoor and outdoor living, the expansive bifold doors open onto a decked patio and private garden, creating a beautiful space for entertaining or relaxing in the fresh air. Inside, the high-spec German-designed kitchens feature premium appliances, a breakfast bar, and ample space for culinary creativity.

Designed with nature in mind, the development includes wildlife-friendly landscaping to support local biodiversity, while residents benefit from access to well-maintained communal grounds within this private gated community.

Practicality meets style with allocated parking, EV charging points, and carefully chosen interiors, including wood-style flooring in living spaces and soft seagrass-style carpets in the bedrooms. Sitting in an elevated position, these homes also boast breathtaking views of the English countryside and sea.

Perfectly positioned to enjoy the tranquility of rural living while remaining close to Brighton’s vibrant amenities and seafront, these homes offer the best of both worlds. With a 10-year new home warranty included, this is a rare opportunity to secure a sustainable, beautifully designed home in a truly special setting.

Property Features

  • Architecturally Designed Eco Homes
  • Exclusive Gated Development
  • Dedicated Home Office
  • High-Spec German Kitchens
  • Sustainable & Energy Efficient
  • Private Parking & EV Charging

Property Summary

Tucked away in a peaceful, eco-friendly woodland setting, this exclusive collection of architecturally striking homes offers a perfect blend of contemporary design and rustic charm. Thoughtfully designed to complement nature, each home features sustainable elements such as grass roofs, solar panels, smart Nest thermostats, and energy-efficient LED lighting—ensuring stylish yet responsible living.

Built with modern lifestyles in mind, these homes offer three spacious bedrooms, including a principal suite with a sleek en-suite shower room and a private front-facing balcony—an ideal spot to unwind. A dedicated ground-floor home office provides the perfect work-from-home setup, balancing productivity with comfort.

Seamlessly connecting indoor and outdoor living, the expansive bifold doors open onto a decked patio and private garden, creating a beautiful space for entertaining or relaxing in the fresh air. Inside, the high-spec German-designed kitchens feature premium appliances, a breakfast bar, and ample space for culinary creativity.

Designed with nature in mind, the development includes wildlife-friendly landscaping to support local biodiversity, while residents benefit from access to well-maintained communal grounds within this private gated community.

Practicality meets style with allocated parking, EV charging points, and carefully chosen interiors, including wood-style flooring in living spaces and soft seagrass-style carpets in the bedrooms. Sitting in an elevated position, these homes also boast breathtaking views of the English countryside and sea.

Perfectly positioned to enjoy the tranquility of rural living while remaining close to Brighton’s vibrant amenities and seafront, these homes offer the best of both worlds. With a 10-year new home warranty included, this is a rare opportunity to secure a sustainable, beautifully designed home in a truly special setting.

Ready for your FREE guide?

Simply input your details below and it’ll land in your inbox…just like magic!